周末小屋

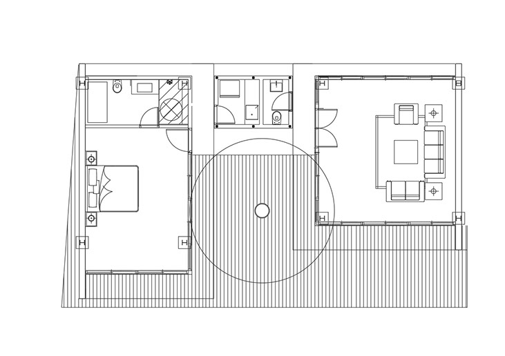
這是一棟鄉間的小房子, 基地就在業主自己老家的後院,是一個在周末探視父母,與家人朋友共度周末的小屋,也是平日父母種菜餘暇休憩的場所。

年份 : 2011 - 2012

所在地 : 台灣 雲林斗六

設計 : 王曉奎建築師事務所

面積 :  114 m²

用途 :  建築住宅

攝影 :  王曉奎建築師事務所

庭院式住宅環繞著白水木而建,可以感受到住宅對花園的包容,生活空間也延伸至花園之中。

父母的住宅是紅磚牆建築,在庭院中設計一個發呆亭 - 茅草木構涼亭,是父母在戶外活動時的休憩場所。

Copyright © Wang hsiao kuei Architects