玻璃屋

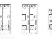
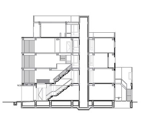
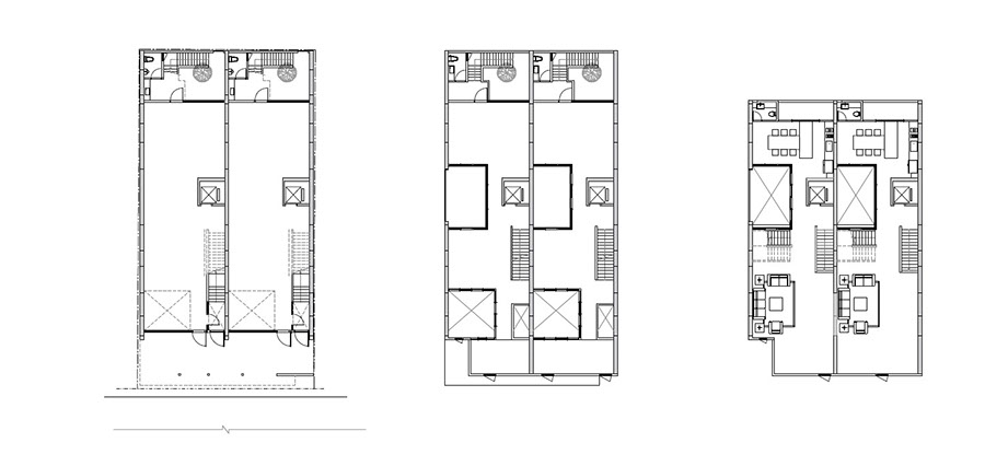
2間店鋪住宅,立面上使用U型玻璃,將整體設計成外觀優雅的單棟建築 。

年份 : 2010 - 2012

所在地 : 台灣 台南

設計 : 王曉奎建築師事務所

結構 : 王儷燕結構技師事務所

營造 : 三頁樓設計工程有限公司

面積 : 887 m² (2戶面積)

用途 :  店鋪 住宅

攝影 :  王曉奎建築師事務所

兩間在都市街道旁的店舖住宅,沿街商業氣息活絡,基地面向北,運河在基地不遠處流過,面前道路是主要進入市區的路線,平日交通繁忙,車馬喧囂。

 

設計一個乾淨透明的玻璃盒子,店招設置在1F騎樓地上,建築立面外觀沒有台灣常見的招牌,建築可以呈現原本樣貌,沒有矯情的造型,安靜地佇立在熱鬧的街道上,反而得到更多的關注

 

施工中的U型玻璃外牆

 

Copyright © Wang hsiao kuei Architects