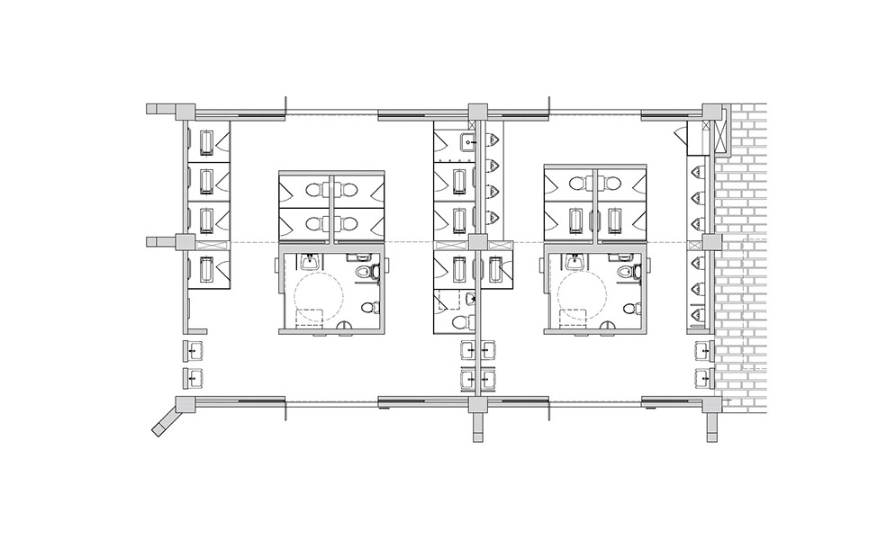
安億公園廁所

安億公園內的廢棄廁所整修,打開廁所原本封閉的外牆,只留下需要的部分。減少封閉的外牆,反而不會造成治安死角,廁所沒有臭味,晚上有安全感,民眾才會願意使用。

年份 : 2017 - 2019

所在地 : 台灣  台南安平

設計 : 王曉奎建築師事務所

           王曉奎、劉耿瑋

機電 : 承品機電工程有限公司

營造 : 開登營造股份有限公司

面積 : 146 m²

用途 :  公共廁所

攝影 :  王曉奎建築師事務所

 

Copyright © Wang hsiao kuei Architects