七里香
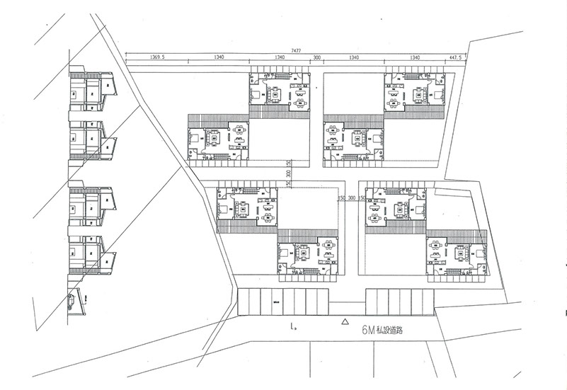
在位於鄉村的基地,規劃一個有8戶住宅的獨立社區。為了讓社區內居民能更密切地相互交流,規劃理念是庭園共享,將汽機車的停車設置在基地外圍,社區內只能行人和腳踏車進入,各戶不設圍牆,父母能安心的讓小孩與老人在社區內自由的活動。
年份 : 2011 - 2013
所在地 : 台灣 嘉義大林
進度 : 取得建照
設計 : 王曉奎建築師事務所
結構 : 王儷燕結構技師事務所
機電 : 正業水電
面積 : 19520 m² (8戶面積)
用途 : 建築住宅
攝影 : 王曉奎建築師事務所
<
>
9 - 10
Copyright © Wang hsiao kuei Architects